THE KTT PROJECT:

LE CORBUSIER’S MAISON DOM-INO, THE HO CHI MINH CITY KHU TAP THE, & THE ARCHITECTURE OF DOMESTIC SPACE

UAH + USC Design Research Workshop Fall 2024

University of Architecture Ho Chi Minh City

USC Architecture Asian Architecture Landscape + Urbanism (AALU)

Faculty: Dr. Vũ Thị Hồng Hạnh, Vice Dean

Phan Lâm Nhật Nam, Lecturer, UAH

Gary Paige, Prof. of Practice, USC

Building: CHUNG CU’ THANH DA LO F

Nguyen Đc Tài Pham, Minh Huy Đo, Ngoc Phương Vy Nguyen

Maison Dom-Ino & the Ho Chi Minh City Khu Tập Thể (or Apartment Block)

In 1914 Le Corbusier developed a seminal drawing for a concrete post and slab structure with a staircase and an open floor plan that could be arranged in various ways to accommodate a multiplicity of living scenarios. The influence of this idea cannot be underestimated. Any survey of modern Vietnamese collective housing provides clear evidence of the pervasiveness of the system. Consequently, the point of departure for the design research and proposals will consist of the following:

1. Develop case studies or “close readings” of selected Khu Tap The (KTT) housing projects in

HCMC through graphic documentation and analysis.

2. Re-examine Le Corbusier’s Dom-Ino—as an idea, a drawing, and a diagram of an open

spatial/structural system that can be critically adapted, transformed, and regenerated.

3. And finally, develop a set of design proposals that consider various ways of modifying the

KTT housing projects to accommodate new and innovative patterns of dwelling in the

contemporary city.

Images of the Existing Building

SITE INFORMATION

ANALYTICAL DRAWINGS

THE PROBLEM:

  • Lack of communal space

  • Atrium used as dumpster

  • Lack of ventilation and sunlight

THE SOLUTION:

  • Transform the atrium into a communal area

  • Add shared spaces into the units

  • Increase sunlight access and ventilation

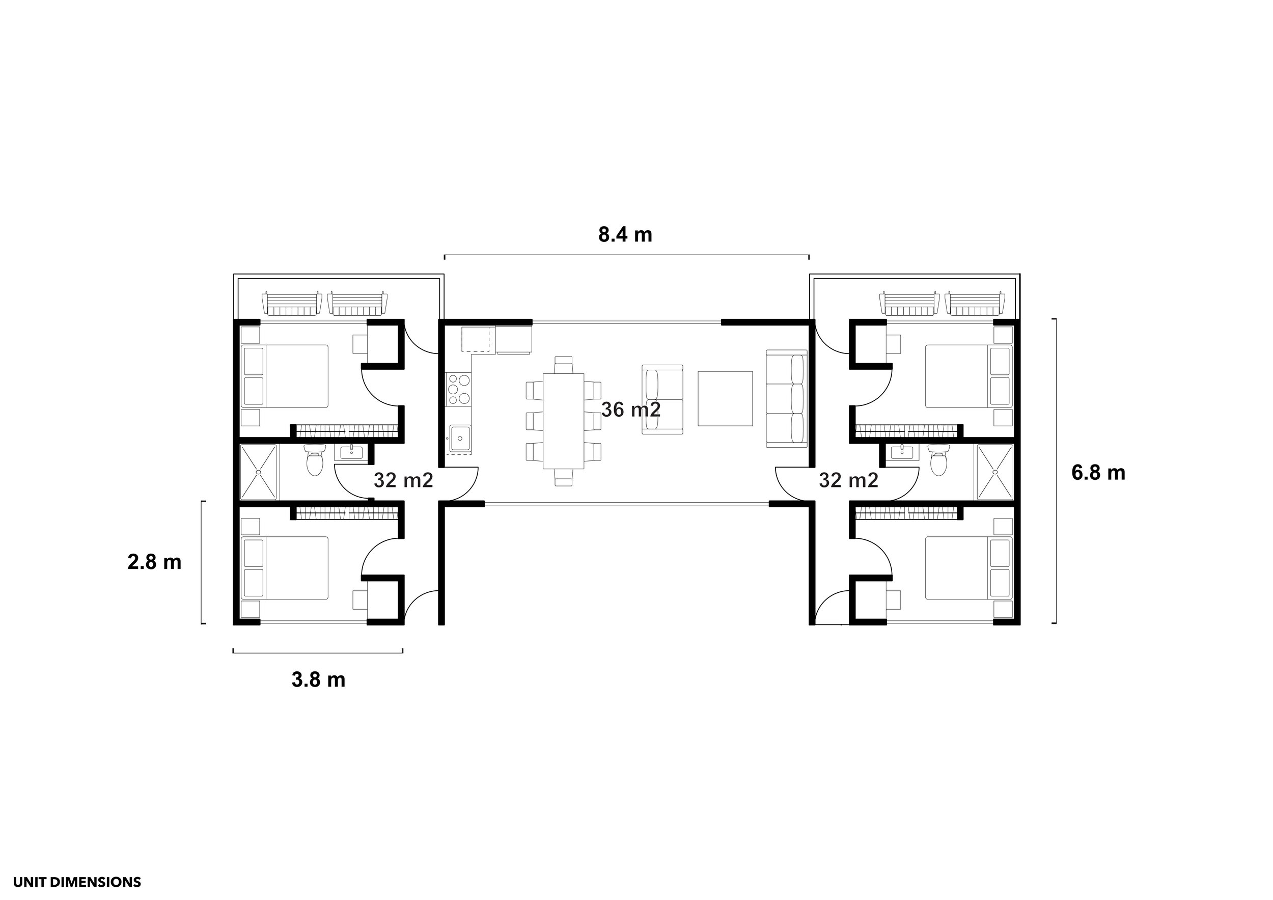
DRAWINGS

PHOTOMONTAGES

Previous
Previous

Anatomy of the Japanese Teahouse

Next
Next

Sketches