In the spirit of the co-operative model, each group of four students formed their own co-operative on four different adjacent sites. This project is a part of a mixed-use transitional housing co-op supporting foster youth aging out of the foster care system in Los Angeles. As they grow, the kids move into the relevant adjacent site regarding the age group. The co-op also offers job opportunities exclusive for its residents through retail in every site’s ground floor.

Having the largest site housing 120 people, I was in charge of hosting the biggest age group, 16 to 18 years old.

POST-FOSTER CARE TRANSITIONAL HOUSING

ARCH 302A | ARCHITECTURAL DESIGN III | FALL 2023

CONCEPT STAGE

Objective was to create a dynamic and versatile environment for the young age group. The retail section is facing the street side and oriented more openly for attracting visitors. The L shape creates courtyard spaces and acts as a separator of public and private. All buildings are identical to keep things equal for the user but they change in elevation.

DIAGRAMS

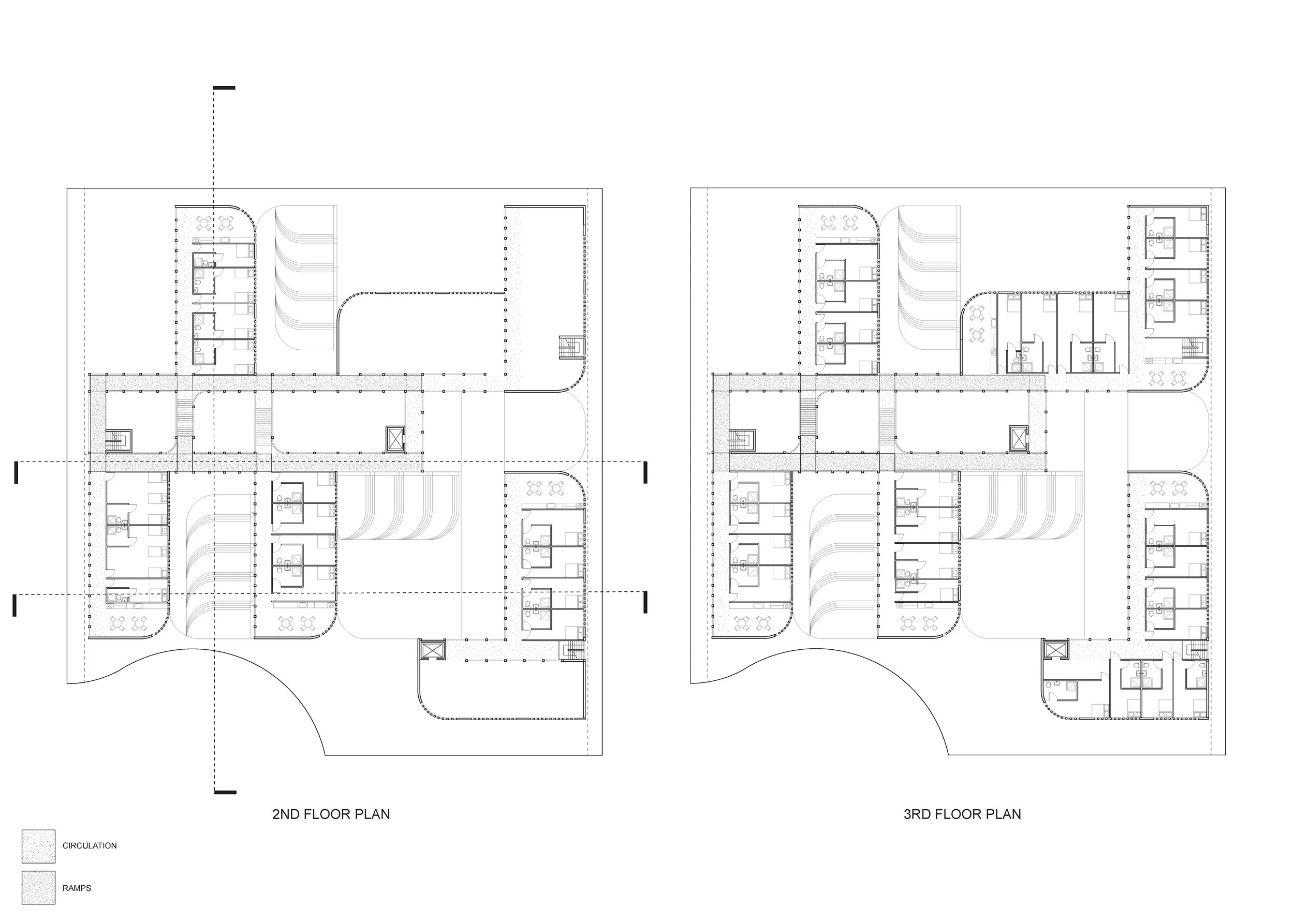
The main body part is the circulation hub connecting all the buildings except for the separated wing for troubled kids. All residential floors have access to the ramps as each wing is composed of floors with varying heights. The ramp structure aims too keep the site more engaging and fun.

DESIGN

Previous
Previous

Adaptive Reuse

Next
Next

Branch Library