LA28 BRANCH LIBRARY

ARCH 202B | ARCHITECTURAL DESIGN II | SPRING 2023

The aim was to design an approximately 5,500 square foot “loose fit” building. The building serves as a local media hub during the Olympics 2028 and then would be converted to a branch library of the Los Angeles Public Library system. The building is used as an information center and neighborhood gathering space during the LA28 games.

The site for the project is a city-owned lot located on Vermont Avenue at 37th Street across from USC campus. No buildings currently exist on the property. The area of the existing lot is approximately 33,980 square feet, which is subdivided into two parcels for this project.

CONCEPT STAGE

The requirement was to start off by designing a structural bay that will be duplicated to form the entirety of the structure.

From the very beginning, I visualized my module as its own occupiable and programmatic space rather than a component of something bigger. That is why, I used framing as a part of my design and not just as a tool to support my structure.

The four sides of my module are different from each other in a harmonious way. This way, the user is offered with various spatial experiences.

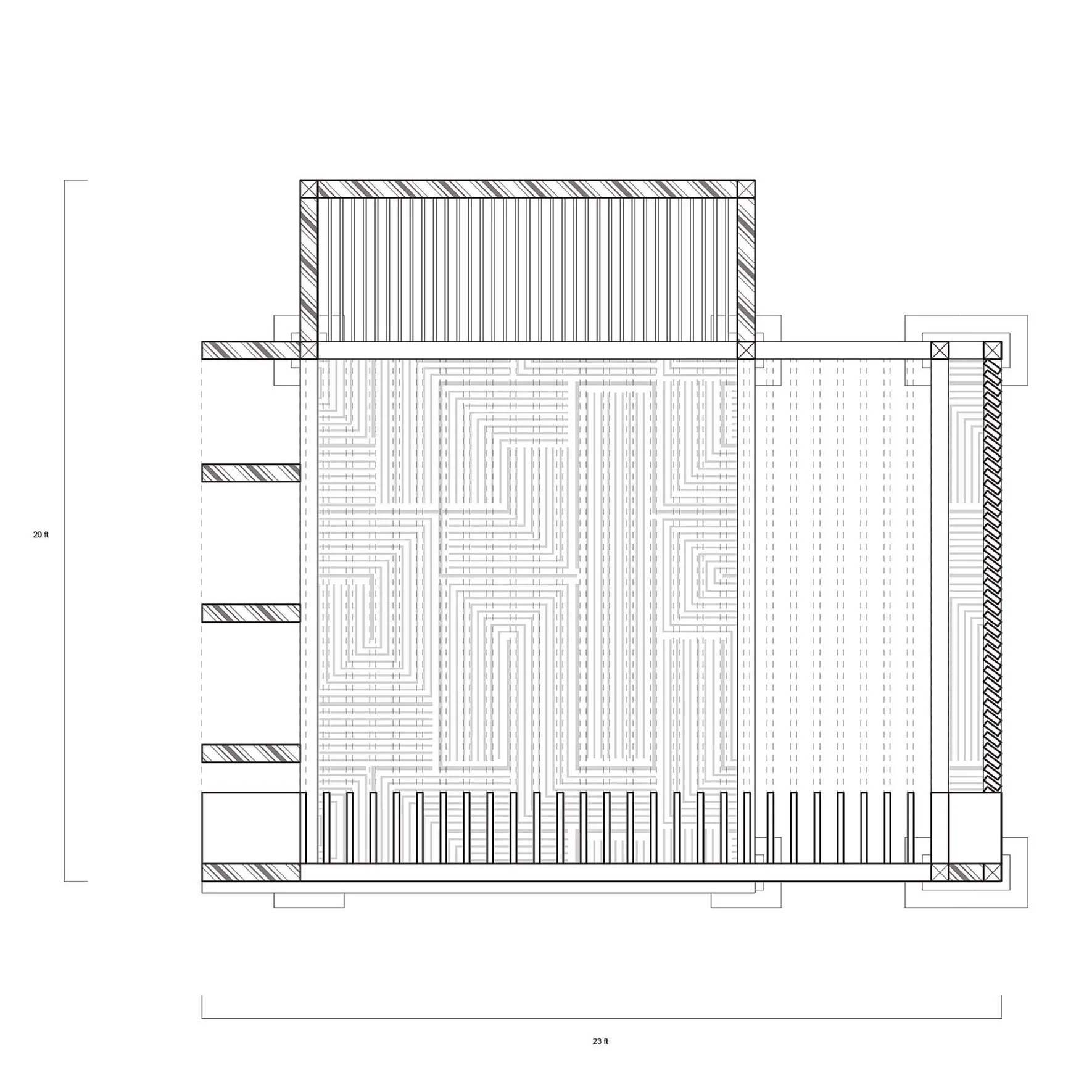
MODULE PLAN

MODULE OBLIQUES

STUDY MODELS

DESIGN

To maintain the shifting nature of my module, I decided to duplicate my module rather than integrating them. I grouped them in three zones. The first zone, work zone, is designed in an enclosed way, acting as a barrier between the residential area and the site. Third zone is arranged in a more open and inviting way, attracting the visitors from the street side.

For creating an architectural and spatial distinction among three zones, I modified the modules accordingly. Based on the zones, they are formatted in the same way, face the outside direction, or mirrored and flipped.

PERSPECTIVE

PARTI DIAGRAM

SITE OBLIQUE

SITE PLAN

SHORT AND LONG ELEVATION

PERSPECTIVE SECTION

COMPOSITE DRAWING

Previous
Previous

Transitional Housing

Next
Next

The Icon